Three beautiful new townhomes designed with the same fresh viewpoint and attention to detail that we put into our single family custom home projects. Located just across the street from the Walnut Creek Library and tucked behind Maria Maria's, these townhomes offer the luxurious lifestyle of living in the heart of Downtown Walnut Creek. Located in the heart of Downtown Walnut Creek.
Lincoln townhomes
1229 Lincoln Ave
Walnut Creek, CA 94596
(925)831-8030
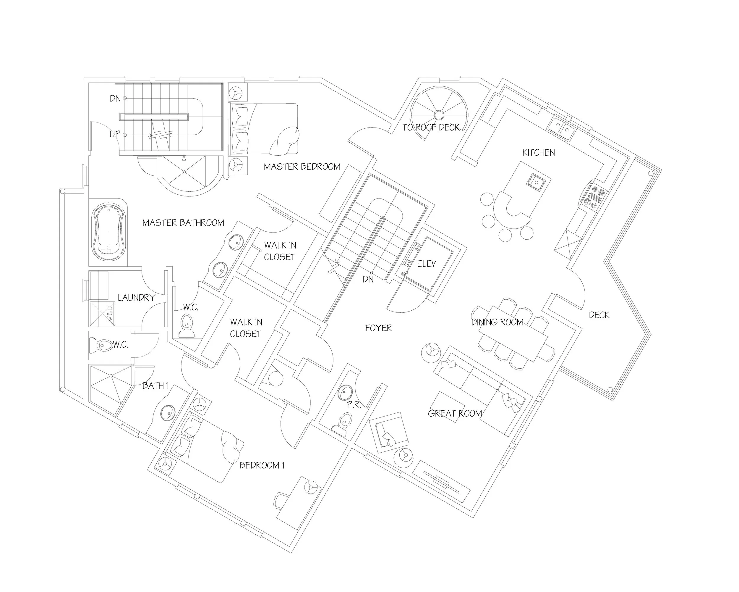
The ANDREA
The Andrea is one of the most desired townhouse in all of Downtown Walnut Creek. The Andrea offers access to the Private Roof Top Deck, two on suite bedrooms with walk in closets, a chef's kitchen and two car tandem garage. Residents of the Andrea can take the semi-private elevator directly to the Foyer and Roof Top. The Andrea boasts plenty of storage with generous walk in closets, a spacious laundry room and seasonal storage at both the Roof Top and 2nd level of the building.
2 Bedrooms
2.5 Bathrooms
Walk in Closets
Private Roof Top Deck
Large Eat-In Kitchen Island
Extra Storage
Spacious Laundry Room
Designer Finishes
2 Car Tandem Garage
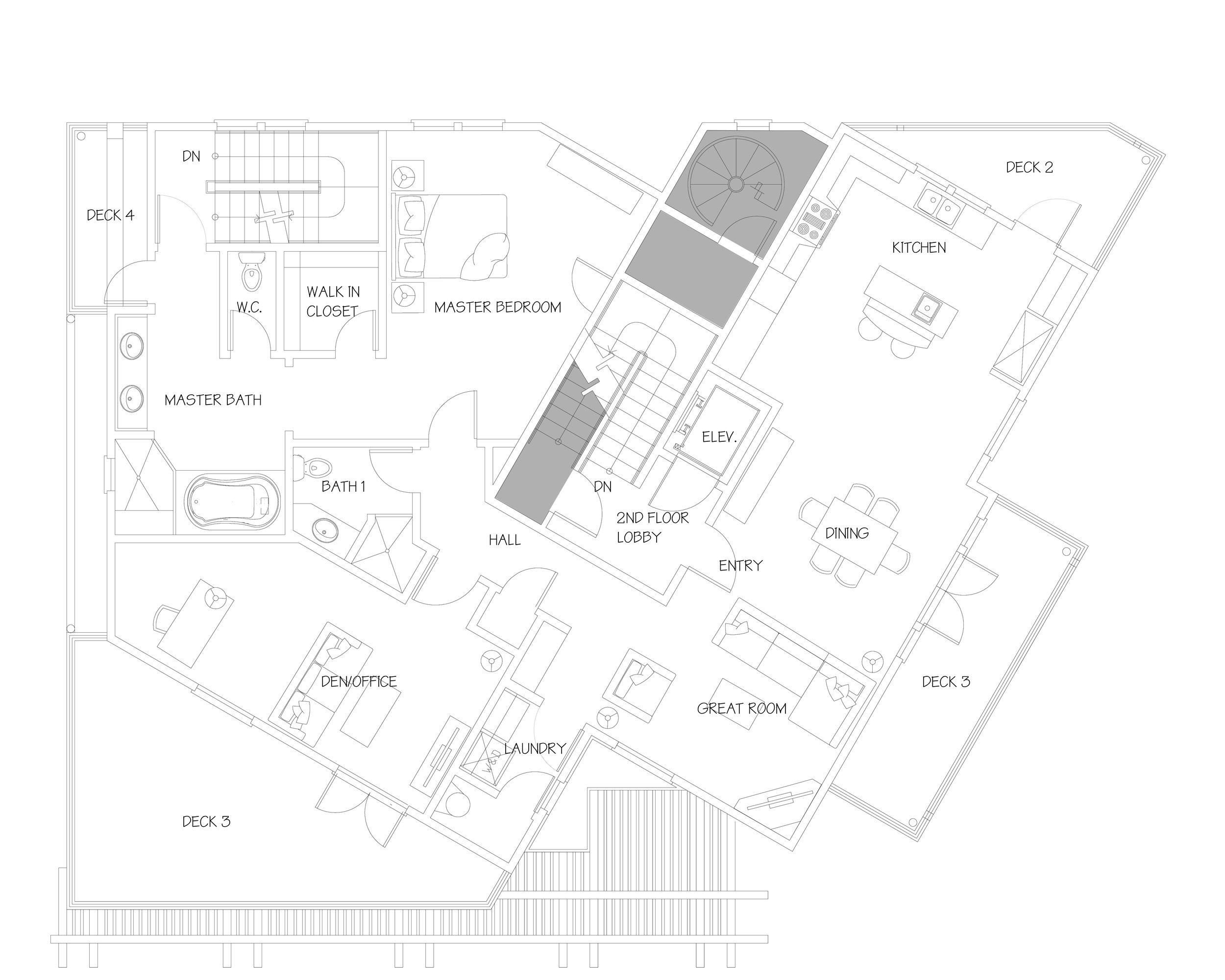
The DAVID
Conveniently located on the second floor of the building, residents of the David have the option of taking the stairs or semi-private elevator from the first floor to the second floor lobby for a convenient entrance. The David features a single garage parking spot, spacious kitchen open to the great room, laundry room, two full bathrooms, four private decks and a large bonus room or office.
Large Master Suite
Semi-Private Elevator Entrance
2 Bathrooms
Bonus Room or Office
Laundry Room
Great room
4 Private Decks
Single Car Garage
The MIKEY
The Mikey, is the most conveniently located unit in the building. Residents of the Mikey will enjoy the large kitchen which opens to the great room, a wrap around private patio with multiple access points from the kitchen, great room and master bedroom. A single car garage is just a few steps from the entrance of the apartment makes it easy to carry in groceries without traveling to higher floors. The Mikey offers a large master bedroom with walk in closet, powder room and stackable washer and dryer location.
Large Master Bedroom
1.5 Bathrooms
Private Patio
Stackable W/D
Single Car Garage
